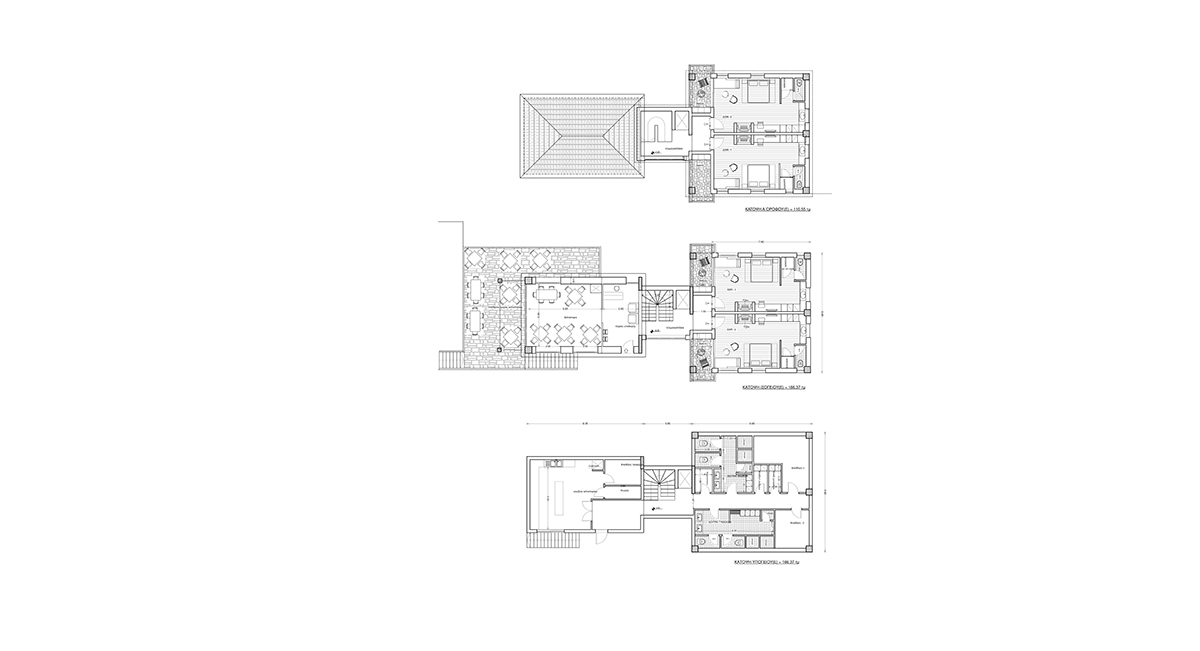
| ΣΥΓΚΡΟΤΗΜΑ ΤΡΙΩΝ ΤΟΥΡΙΣΤΙΚΩΝ ΚΑΤΟΙΚΙΩΝ, Βάργιανης Εμβαδόν Έργου: 327,12m² |
Το έργο υλοποιείται στο ορεινό χωρίο της Βάργιανης ,εντός αξιόλογου διατηρητέου παραδοσιακού οικισμού. Το επικλινές έδαφος του οικοπέδου σε συνδυασμό με το εντυπωσιακό ορεινό τοπίο οδήγησε στον αρχιτεκτονικό σχεδιασμό ενός συγκροτήματος τουριστικών κατοικιών που αποτελείται από δύο κτιριακούς όγκους, οι οποίοι εναρμονίζονται με το έντονο ανάγλυφο του φυσικού εδάφους. Ταυτόχρονα κατά την διαμόρφωση του περιβάλλοντος χώρου δημιουργούνται διαφορετικά επίπεδα που «κατεβαίνουν» την πλαγιά, με αρχικό το επίπεδο εισόδου και στάθμευσης του συγκροτήματος. Στην συνέχεια ακολουθούν διαδρομές και στάσεις προσφέροντας μία μοναδική εμπειρία μεταξύ φυσικού και χτισμένου τοπίου. Οι όψεις διαμορφώνονται με εμφανή λιθοδομή, ξύλινα κουφώματα και τετράριχτη στέγη ακολουθώντας τον παραδοσιακή Αρχιτεκτονική του Οικισμού. Η εσωτερική διαμόρφωση των κατοικιών ακολουθεί την ανοιχτή κάτοψη μεταξύ του χώρου ύπνου, του καθιστικού και της κουζίνας, εξασφαλίζοντας την λειτουργικότητα για ξεκούραση και χαλάρωση καθώς και την απρόσκοπτη θέα προς το ορεινό τοπίο. |
|
| ΜΙΚΡΟ ΞΕΝΟΔΟΧΕΙΟ, Αράχωβα Εμβαδόν Έργου:294,83τ.μ. |
Το οικόπεδο όπου θα κατασκευασθεί το κτίριο έχει εμβαδόν 2152,75τ.μ.με έντονη υψομετρικη κλίση (26%) και με αξιόλογη θέα προς την Αράχωβα και τους ορεινούς όγκους του Δελφικού τοπίου. Νοτιοανατολικά εφάπτεται με αγροτική οδό. Βρίσκεται στην περιοχή Αγίας Τριάδας Αράχωβας η οποία χαρακτηρίζεται ως ζωνη Δ.Η περιοχή του εγκεκριμένου ρυμοτομικού σχεδίου Αράχωβας χαρακτηρίζεται ως παραδοσιακός οικισμός και η ζώνη Δ ως προστασία γύρω από αυτην. Σύμφωνα με την αρχιτεκτονική σύνθεση το κτίριο αναπτύσσεται σε τρεις συνεχόμενους όγκους με διαφορετικό ύψος και ανοίγματα ώστε να σηματοδοτείται και να εξυπηρετείται η κάθε λειτουργία του κτιρίου καλύτερα. Η κεντρική ιδέα του σχεδιασμού των δωματίων συνδυάζει την λειτουργικότητα με τις σύγχρονες τάσεις στο concept της φιλοξενίας. Επίσης τα δωμάτια φέρουν επιρροές από την παραδοσιακή αρχιτεκτονική της περιοχής, με τη χρήση φυσικών υλικών όπως πέτρα ,ξύλο, πατητή τσιμεντοκονία, ,εμφανείς ξύλινες οροφές. Τα δύο δωμάτια του ισογείου έχουν πρόσβαση ,το κάθ' ένα σε ξεχωριστή μικρή ιδιωτική πισίνα που εξασφαλίζει την χαλάρωση με την ιδιωτικότητα εντός του φυσικού περιβάλλοντος. Επίσης το κάθε δωμάτιο παρέχει όλες τις λειτουργικές προδιαγραφές της κατηγορίας του. |
![]() |





